*2014年荣获中国商业地产招商大会颁发的「中国商业地产O2O最佳实践奖」之荣誉
*2015年荣获中国商业地产联盟颁发的「中国商业地产杰出服务机构」之荣誉
*2015年荣获搜铺网颁发的「中国2015商业地产最佳运营机构金项奖」之荣誉
友情链接 | 设为首页
 
  策略合作伙伴  
中国(香港)特许经营协会
香港品牌发展联合会
CEPA商机发展联合会
 
  招商资源  

 
  特色次主力店推介

 
  司露态
 
 
合肥[香港广场]全程策划 销售 招商 经营管理
 

香港广场位于合肥市最繁华的商业,办公、文化区域中心,是一座集办公、餐饮、娱乐、购物为一体的国际化多功能公寓式纯商务大厦。该项目交通迅捷,四通八达,步行街、百大商圈、长江路商业街环侍左右,人流畅旺,是合肥市无可争议的中心地标。项目占地面积5433平方米,总建筑面积约44000。

商场立面效果图

 

 

 

 

 

商场商业组合平面图

 

 

 

 

 

 

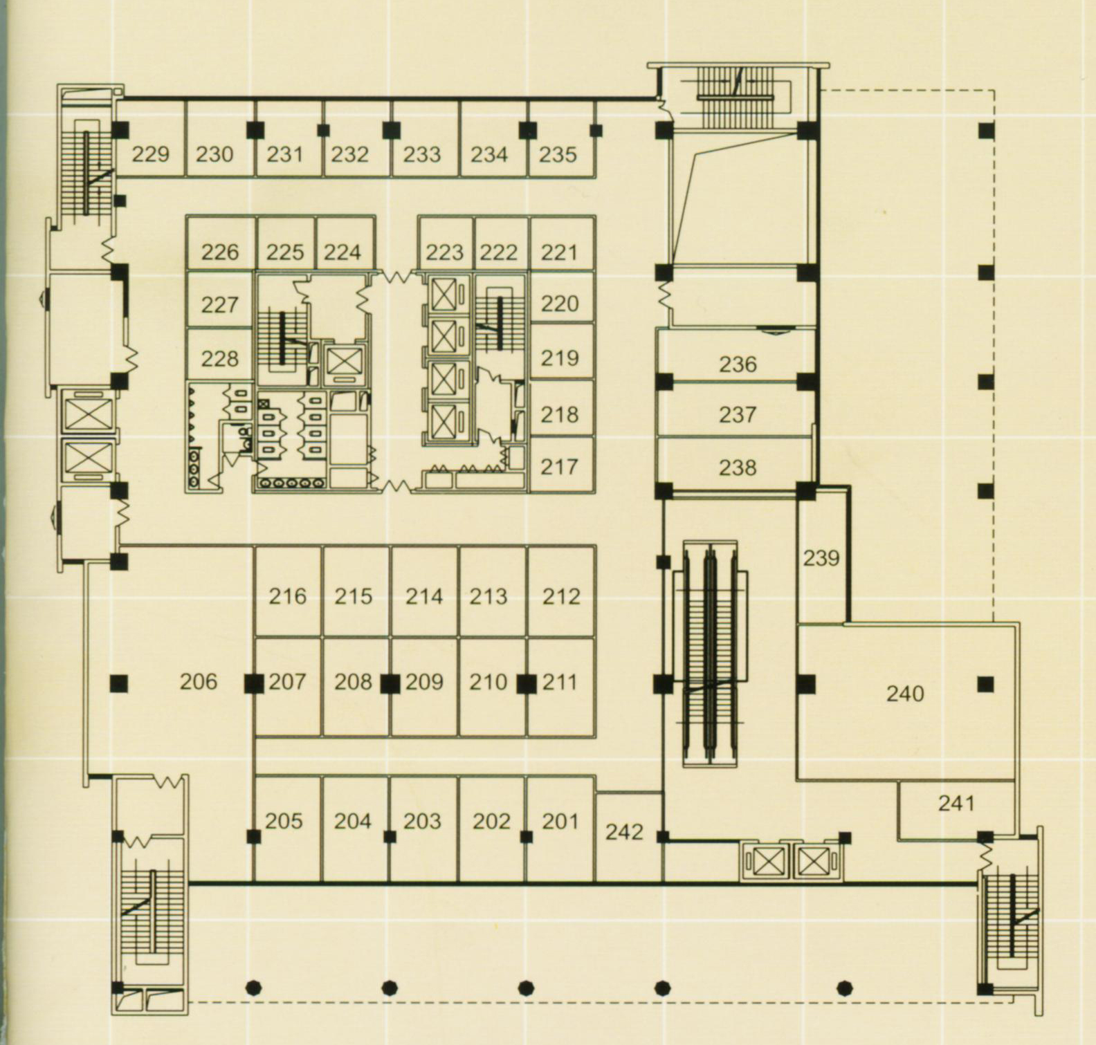
                        二层平面图                                             三层平面图

               

 

 

 

 

 

                           四层平面图                                             五层平面图

 

 

 
 

 

 
 
 
  最新项目
美佳华购物中心
淮安·涟水中联壹城
南昌·盛汇城市广场
分宜·永康时代城
江西丰城·丰跃名城
云南·鸿榆新天地
涪陵·金科世界走廊
重庆·永川中央大街
金华·永盛购物广场
遵义·时代天街
攀枝花·奥林匹克购物中心
银海地产
贵州·银海元隆广场
宣城·大唐国际城
深圳·金光华广场
耒阳·鑫亚世纪城
惠州·大新城
苏州·生活广场
巴中·荣邦国际商业中心
 

  友情连接:  

商业地产联盟 东北商业网  泛商网  大庆房地产  苏州房产门户  土地爷  龙厦地产  中国房商网  品牌招商网 赢商网  中华商铺网  融讯地产网  焦点招商网  地产江湖  房产联盟  苏州房产  邯郸房产  广州搜房网  湖州房产网  天津招商网  中国不动产网  太原房地产门户  淮北房地产网  潍坊房地产网  365地产家居网  网房  深圳商业地产网  中国商业地产策划网  优铺网  房 商 网  香港地产网  中国房地产网  山东房地产网  亿房网  中国房地产行业网  商界招商网  山西房产网  中华招商引资网  更多   
 
©版权所有:香港环球商机®  粤ICP备19007988号 信息版权与商标声明  免责声明